1. Obergeschoss
Aufteilungsplan 1. Obergeschoss :
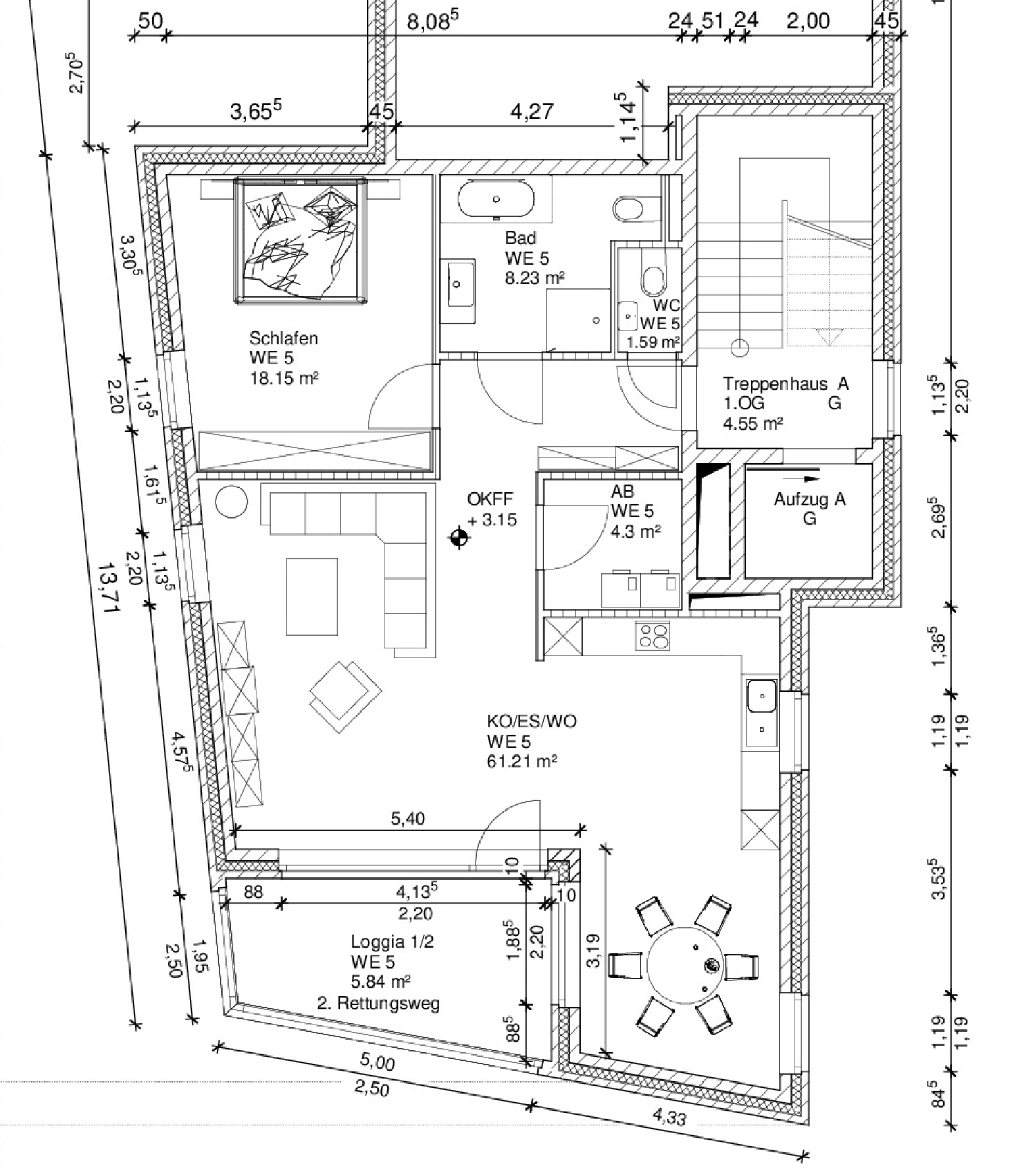
Wohnung Nr. 5 :
Wohnung im 1. Obergeschoss mit einer Loggia,
einem Abstellraum und einem Kellerraum,
die eine Wohnfläche von 99,32qm hat,
im Aufteilungsplan mit WE 5
bezeichnet und in Farbe: gelb.
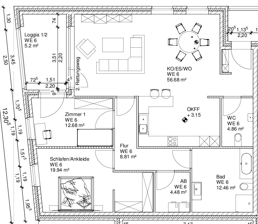
Wohnung Nr. 6 :
Wohnung im 1. Obergeschoss Gang 1 mit einer Loggia,
einem Abstellraum und einem Kellerraum,
die eine Wohnfläche von 125,11 qm hat,
im Aufteilungsplan mit WE 6 bezeichnet und in Farbe: rosa.
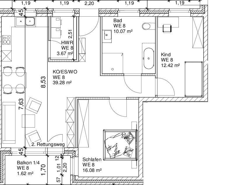
Wohnung Nr. 8 :
Wohnung im 1. Obergeschoss Gang 1 mit einem Balkon,
einem Abstellraum und einem Kellerraum,
die eine Wohnfläche von 81,90 qm hat,
im Aufteilungsplan mit WE 8 bezeichnet und in Farbe: hellgrün.
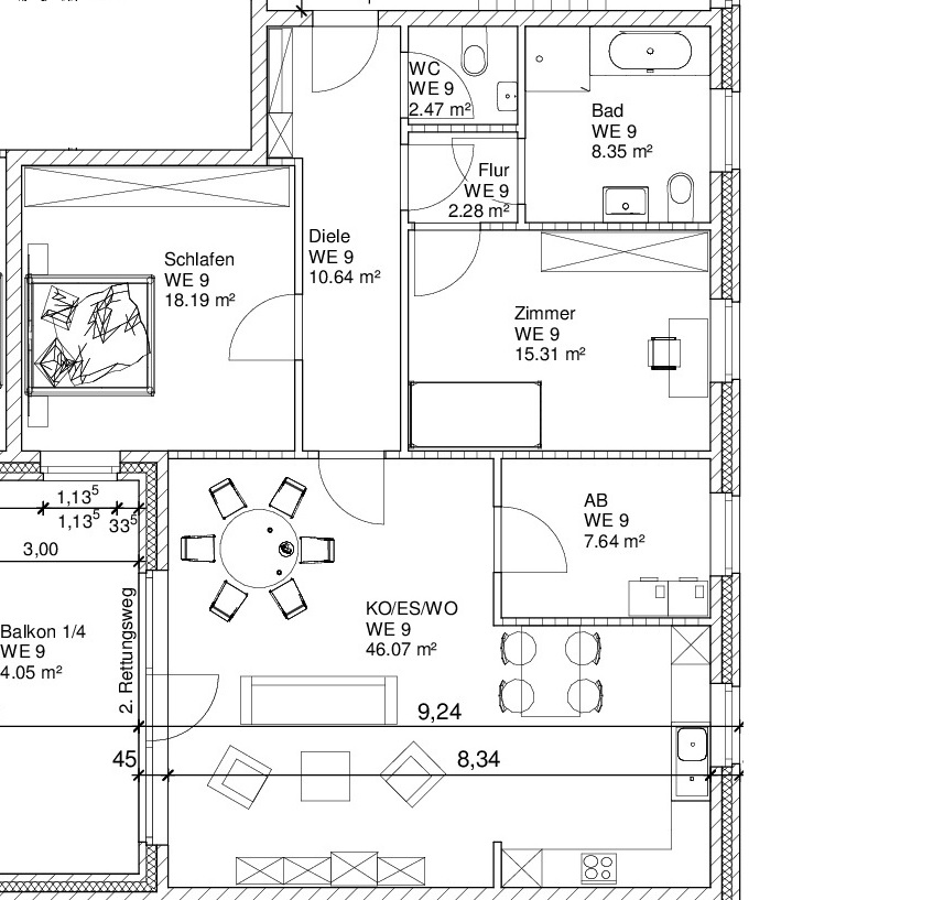
Wohnung Nr. 9 :
Wohnung im 1. Obergeschoss Gang 1 mit einem Balkon,
einem Abstellraum und einem Kellerraum,
die eine Wohnfläche von 115,00 qm hat,
im Aufteilungsplan mit WE 9 bezeichnet und in Farbe: mittelblau.
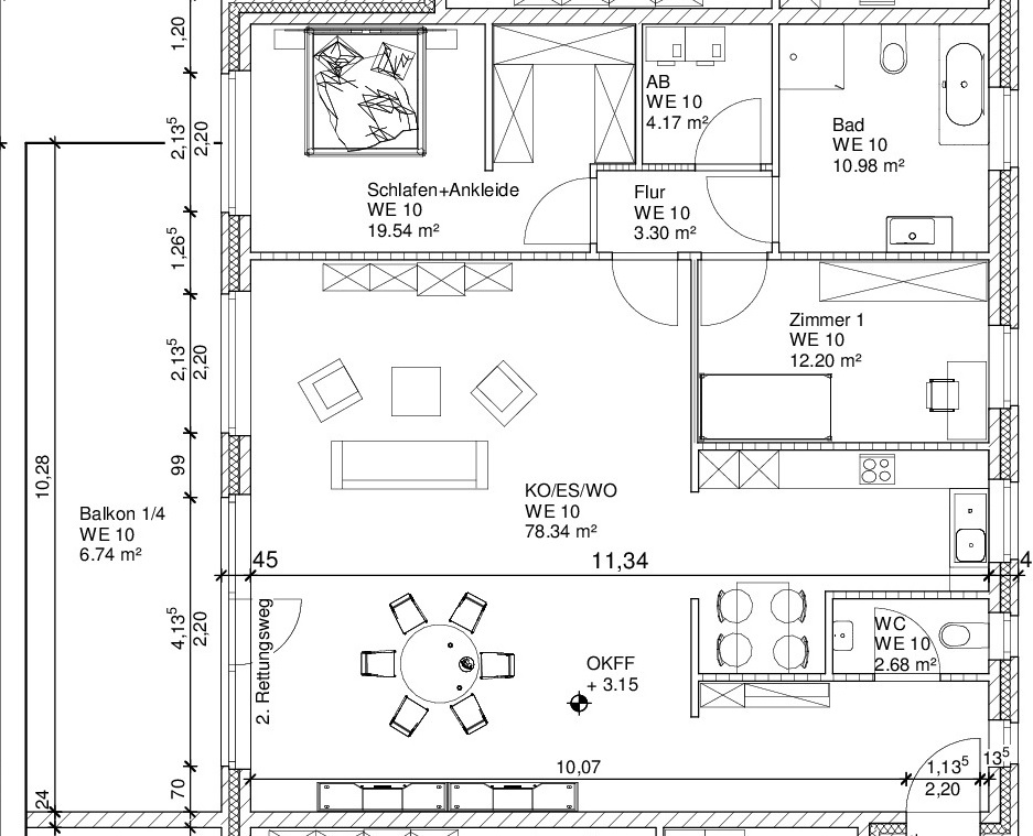
Wohnung Nr. 10 :
Wohnung im 1. Obergeschoss Gang 2 mit einem Balkon,
einem Abstellraum und einem Kellerraum,
die eine Wohnfläche von 137,95 qm hat,
im Aufteilungsplan mit WE 10 bezeichnet und in Farbe: rot.
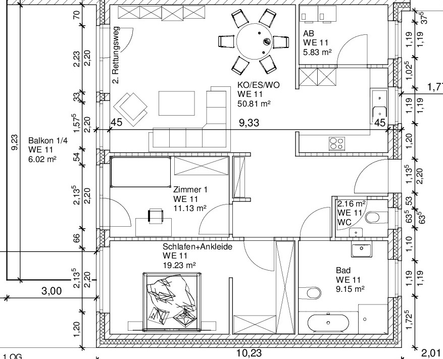
Wohnung Nr.: 11
Wohnung im 1. Obergeschoss Gang 2 mit einem Balkon,
einem Abstellraum und einem Kellerraum,
die eine Wohnfläche von 104,33 qm hat,
im Aufteilungsplan mit WE 11 bezeichnet und in Farbe: dunkelblau.
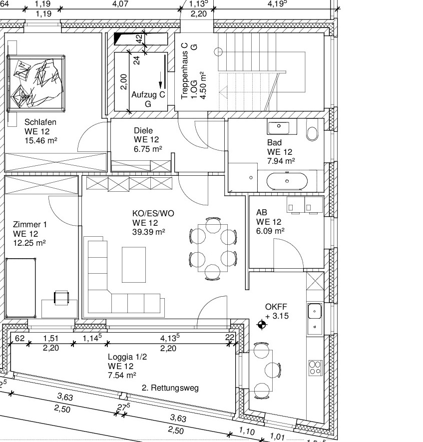
Wohnung Nr. 12 :
Wohnung im 1. Obergeschoss Gang 2 mit einer Loggia,
einem Abstellraum und einem Kellerraum,
die eine Wohnfläche von 95,42 qm hat,
im Aufteilungsplan mit WE 12 bezeichnet und in Farbe: grau.
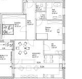
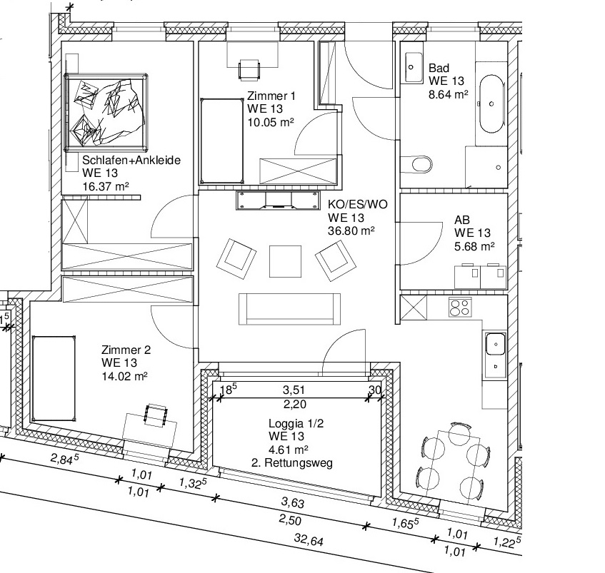
Wohnung Nr. 13 :
Wohnung im 1. Obergeschoss Gang 2 mit einer Loggia,
einem Abstellraum und einem Kellerraum,
die eine Wohnfläche von 96,17 qm hat,
im Aufteilungsplan mit WE 13 bezeichnet und in Farbe: hellviolett.
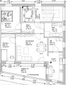
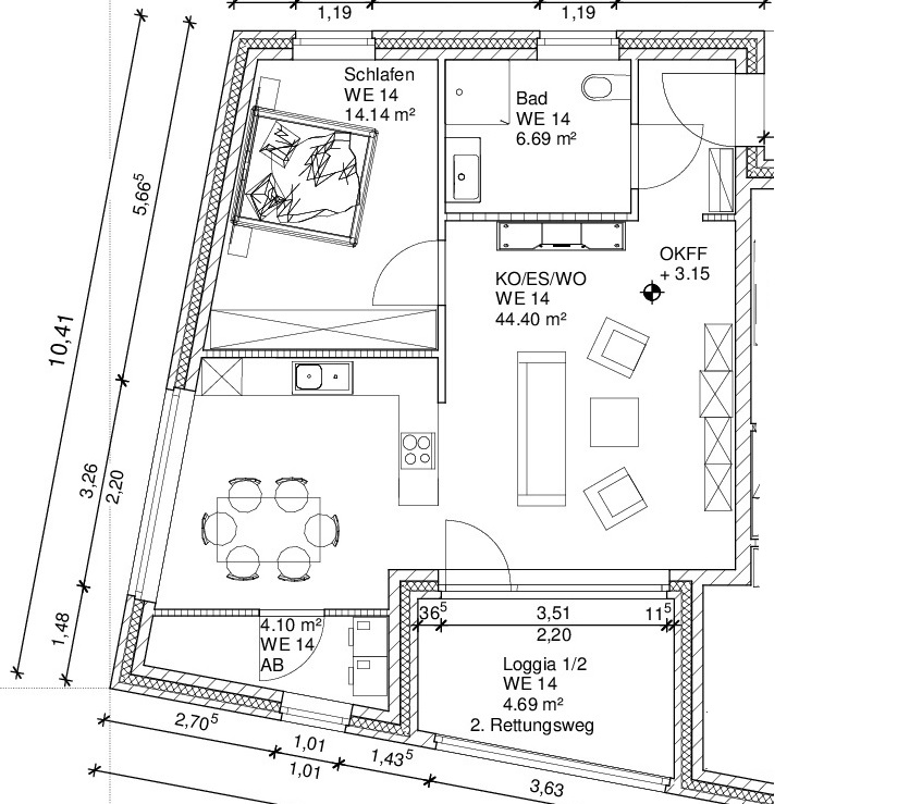
Wohnung Nr. 14 :
Wohnung im 1. Obergeschoss Gang 2 mit einer Loggia,
einem Abstellraum und einem Kellerraum,
die eine Wohnfläche von 74,02 qm hat,
im Aufteilungsplan mit WE 14
bezeichnet und in Farbe: dunkelviolett.










