2. Obergeschoss
Aufteilungsplan 2. Obergeschoss :
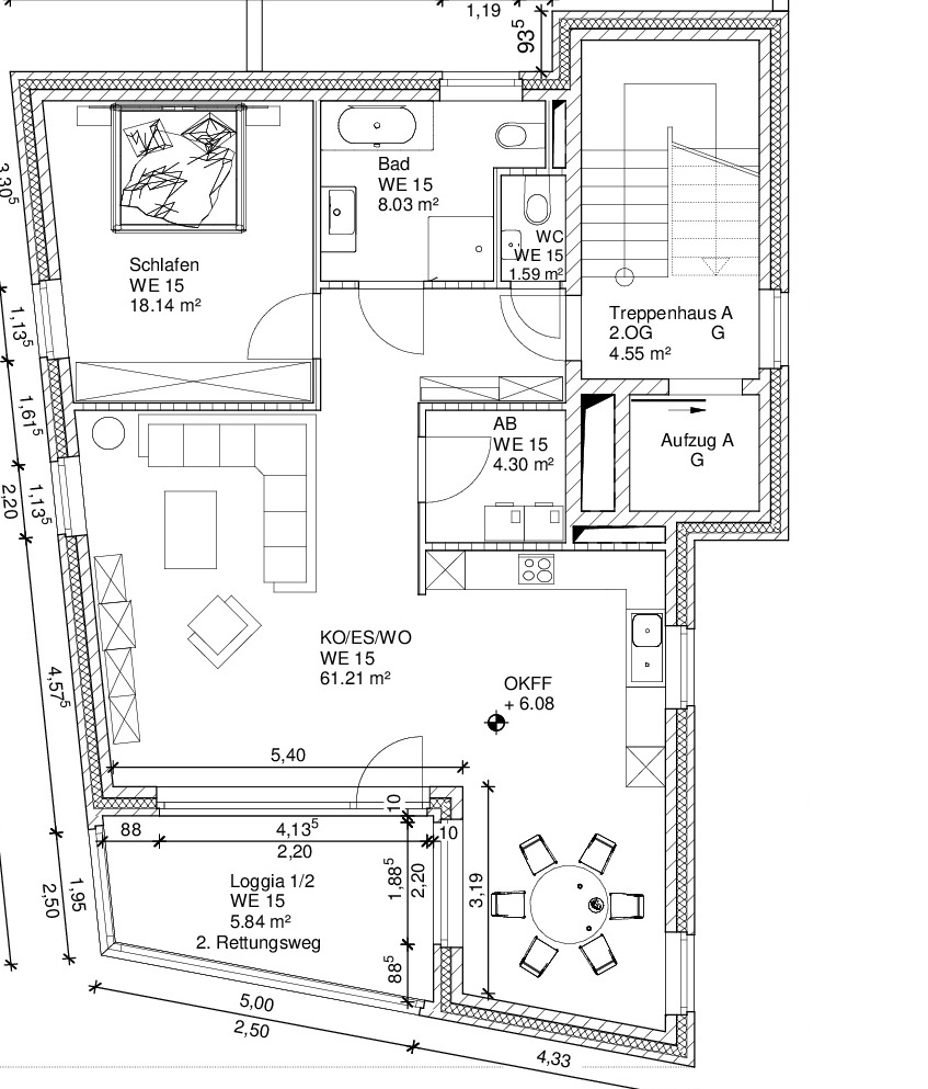
Wohnung Nr. 15 :
Wohnung im 2. Obergeschoss mit einer Loggia,
einem Abstellraum und einem Kellerraum,
die eine Wohnfläche von 99,11qm hat,
im Aufteilungsplan mit WE 15 bezeichnet und in Farbe: hellbraun.
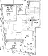
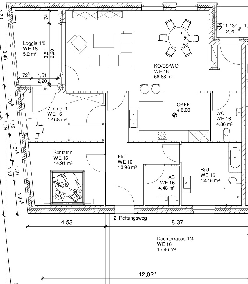
Wohnung Nr. 16 :
Wohnung im 2. Obergeschoss Gang 1 mit einer Dachterrasse,
einem Abstellraum und einem Kellerraum,
die eine Wohnfläche von 140,69 qm hat,
im Aufteilungsplan mit WE 16 bezeichnet und in Farbe: hellgrau.
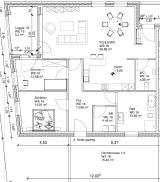
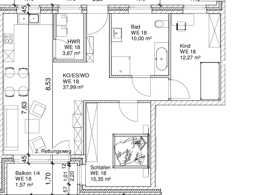
Wohnung Nr. 18 :
Wohnung im 2. Obergeschoss Gang 1 mit einem Balkon,
einem Abstellraum und einem Kellerraum,
die eine Wohnfläche von 81,90 qm hat,
im Aufteilungsplan mit WE 18 bezeichnet und in Farbe: hellgrün.
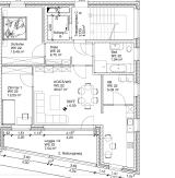
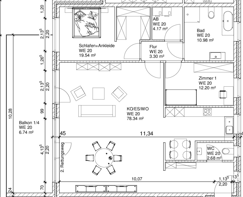
Wohnung Nr. 20 :
Wohnung im 2. Obergeschoss Gang 2 mit einem Balkon,
einem Abstellraum und einem Kellerraum,
die eine Wohnfläche von 137,95 qm hat,
im Aufteilungsplan mit WE 20 bezeichnet und in Farbe: dunkelblau.
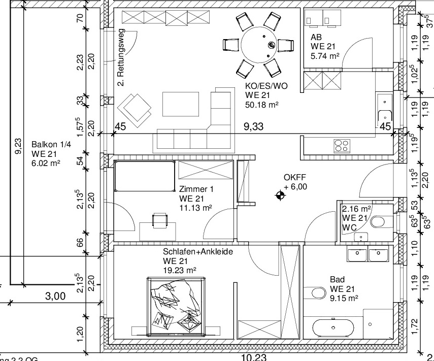
Wohnung Nr. 21 :
Wohnung im 2. Obergeschoss Gang 2 mit einem Balkon,
einem Abstellraum und einem Kellerraum,
die eine Wohnfläche von 104,33 qm hat,
im Aufteilungsplan mit WE 21 bezeichnet und in Farbe: hellrot.
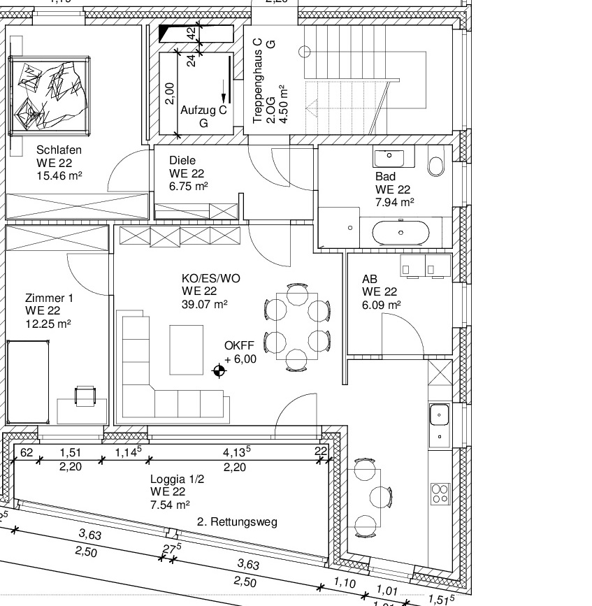
Wohnung Nr.22 :
Wohnung im 2. Obergeschoss Gang 2 mit einer Loggia,
einem Abstellraum und einem Kellerraum,
die eine Wohnfläche von 95,10 qm hat,
im Aufteilungsplan mit WE 22 bezeichnet und in Farbe: violett.
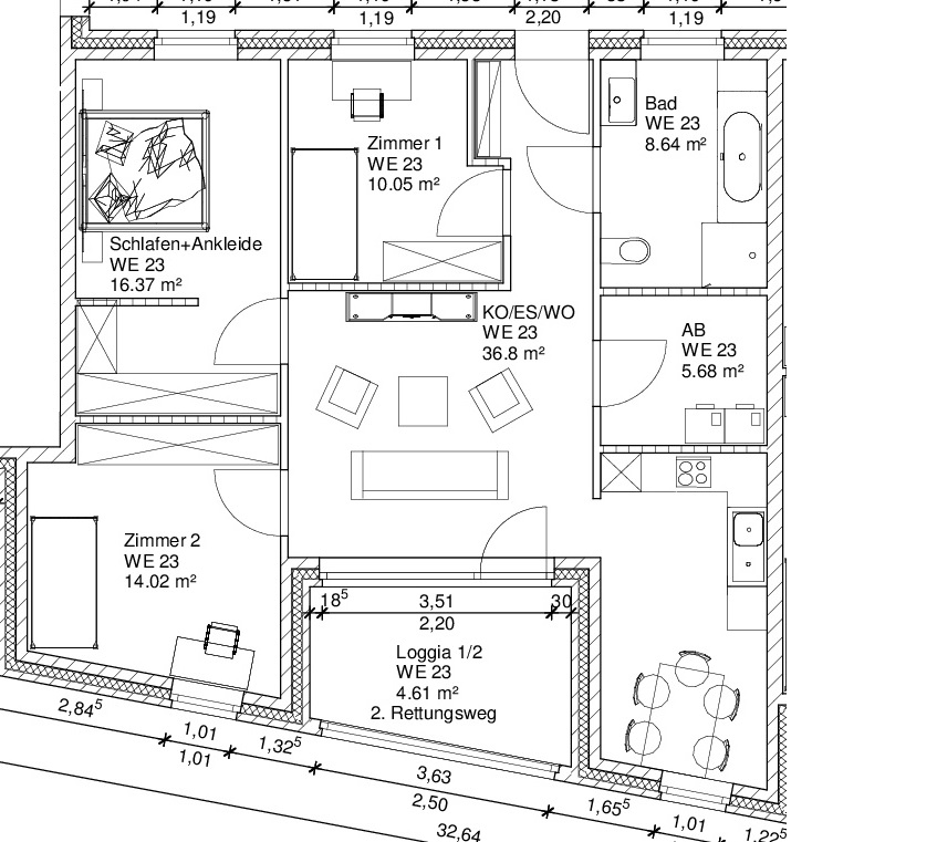
Wohnung Nr. 23 :
Wohnung im 2. Obergeschoss Gang 2 mit einer Loggia,
einem Abstellraum und einem Kellerraum,
die eine Wohnfläche von 96,17 qm hat,
im Aufteilungsplan mit WE 23 bezeichnet und in Farbe: grün.
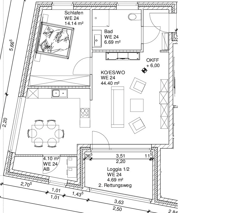
Wohnung Nr. 24 :
Wohnung im 2. Obergeschoss Gang 2 mit einer Loggia,
einem Abstellraum und einem Kellerraum,
die eine Wohnfläche von 74,02 qm hat,
im Aufteilungsplan mit WE 24 bezeichnet und in Farbe: dunkelrot.









