Erdgeschoss
Im Erdgeschoss befinden sich 7 Ladenlokale in unterschiedlichen Größen.
Näheres finden Sie unter dem Reiter "Geschäfte".
Aufteilungsplan Erdgeschoss :
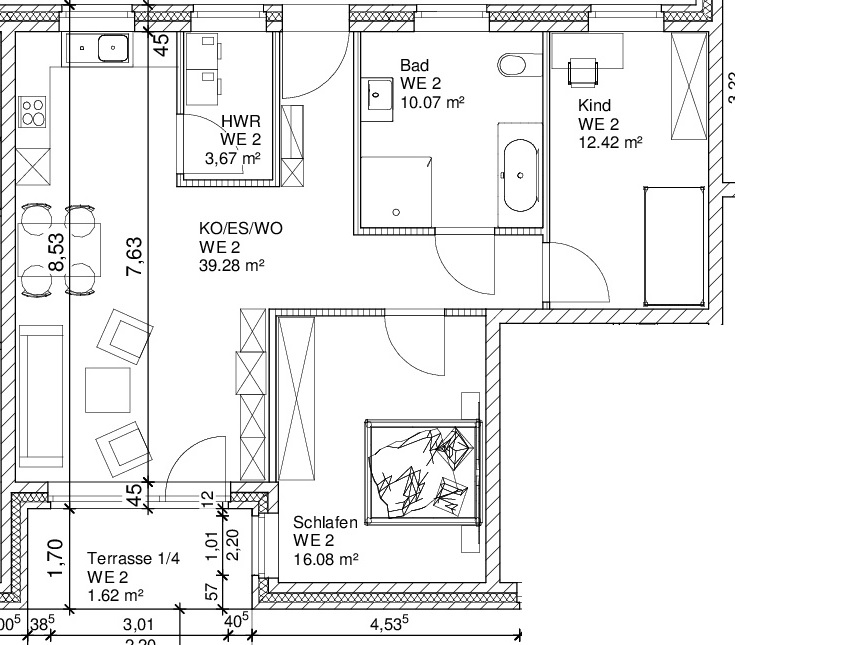
Wohnung Nr.2 :
Wohnung im Erdgeschoss mit einer Terrasse,
einem Abstellraum und einem Kellerraum,
die eine Wohnfläche von 82,16 qm hat,
im Aufteilungsplan mit WE 2 bezeichnet in Farbe gelb.
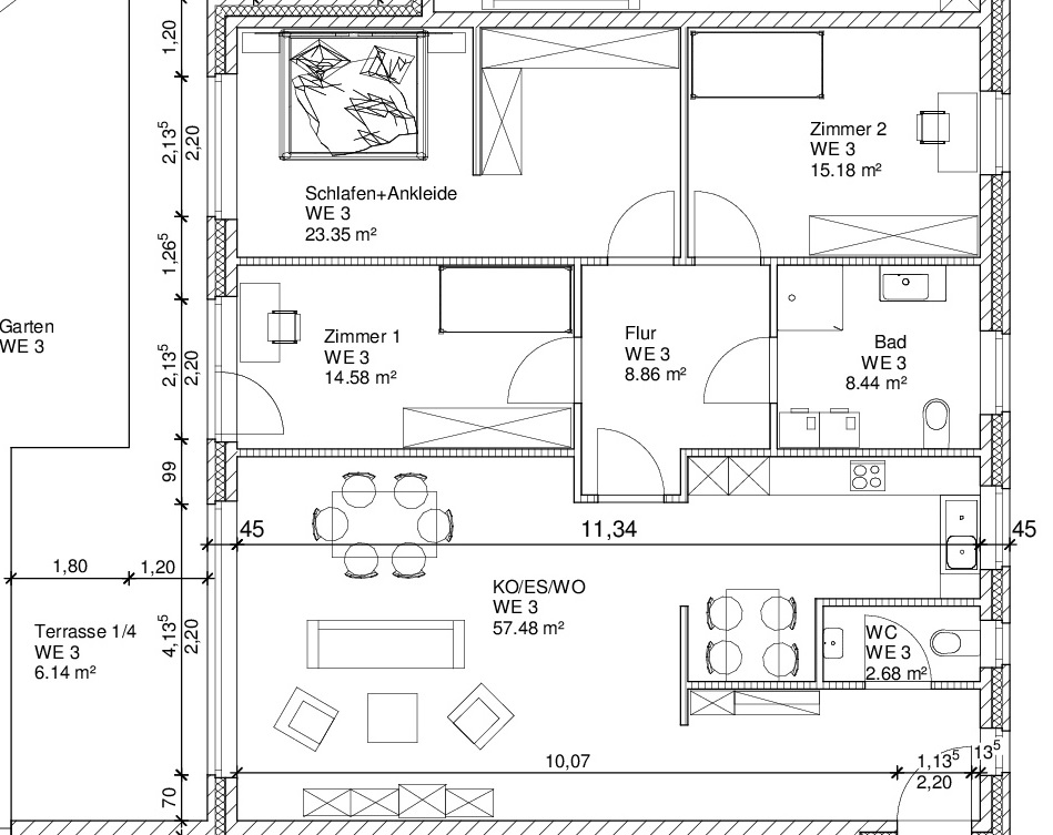
Wohnung Nr.3 :
Wohnung im Erdgeschoss mit einer Terrasse,
einem Abstellraum und einem Kellerraum,
die eine Wohnfläche von 138,06 qm hat,
im Aufteilungsplan mit WE 3 bezeichnet in Farbe dunkelblau.
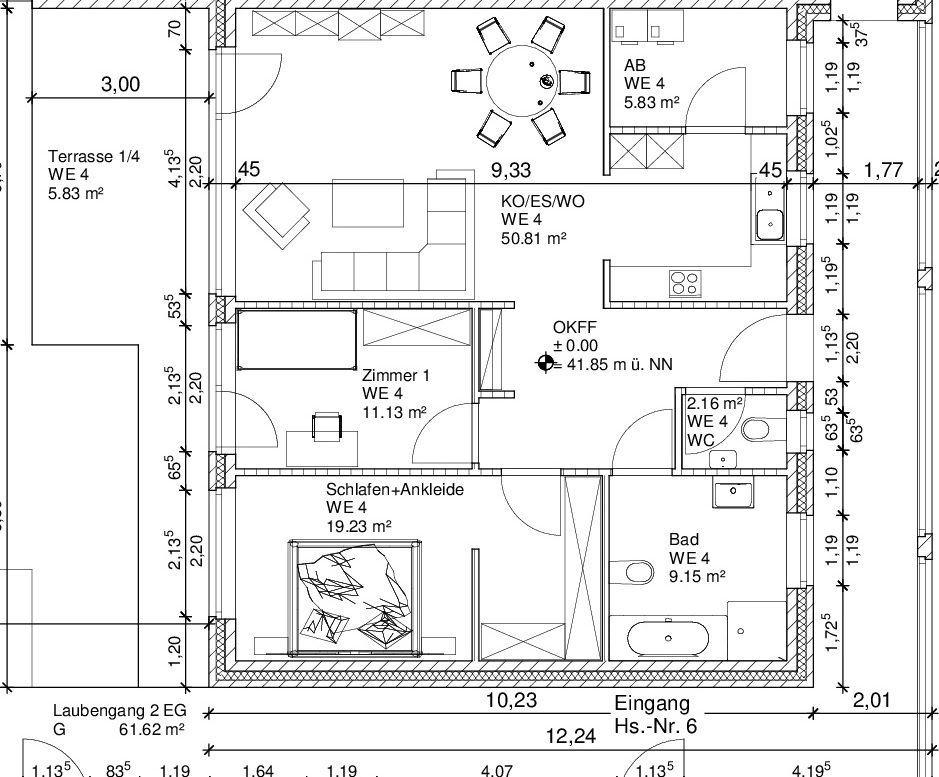
Wohnung Nr. 4 :
Wohnung im Erdgeschoß mit einer Terrasse,
einem Abstellraum und einem Kellerraum,
die eine Wohnfläche von 105,03 qm hat,
im Aufteilungsplan mit WE 4 bezeichnet in Farbe violett.
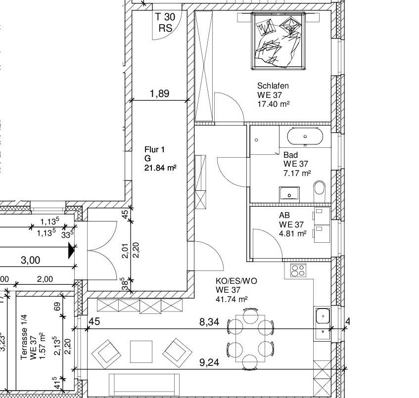
Wohnug Nr.37 :
Wohnung im Erdgeschoß mit einemAbstellraum,
die eine Wohnfläche von 72,20 qm hat,
im Aufteilungsplan mit WE 37 bezeichnet, in Farbe hellblau.





