3. Obergeschoss
Aufteilungsplan 3. Obergeschoss :
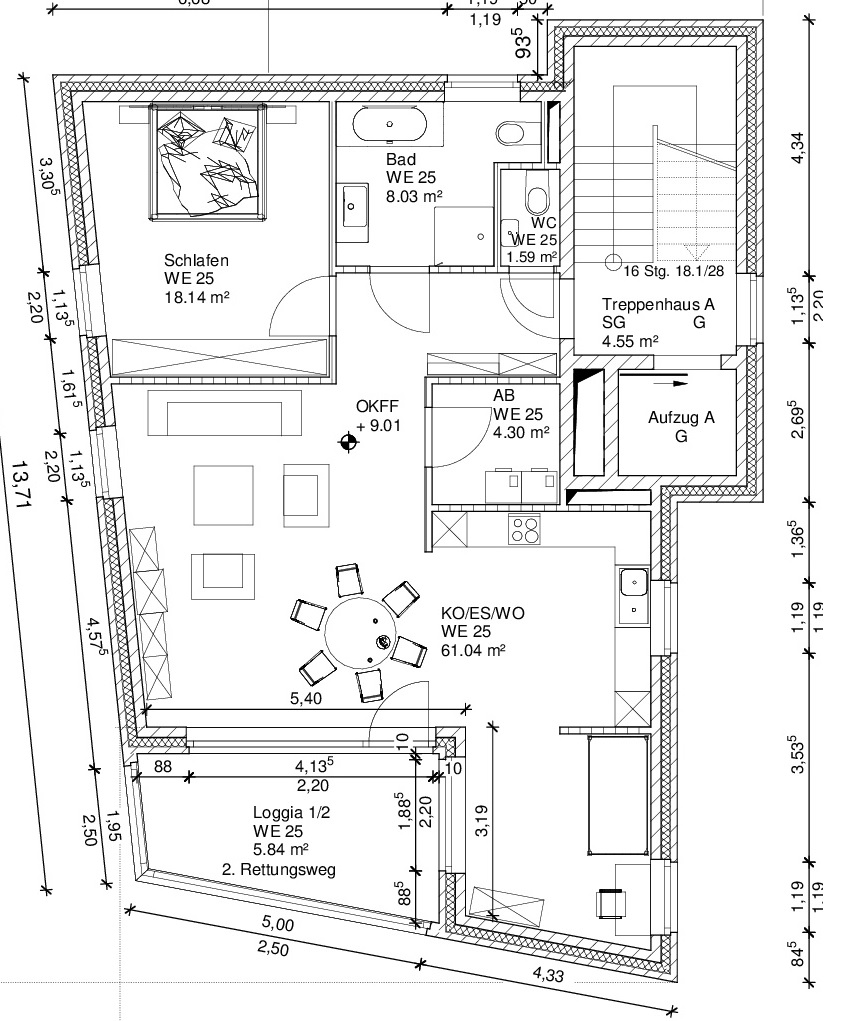
Wohnung Nr. 25 :
Wohnung im 3. Obergeschoss mit einer Loggia,
einem Abstellraum und einem Kellerraum,
die eine Wohnfläche von 98,94 qm hat,
im Aufteilungsplan mit WE 25 bezeichnet und in Farbe: gelb
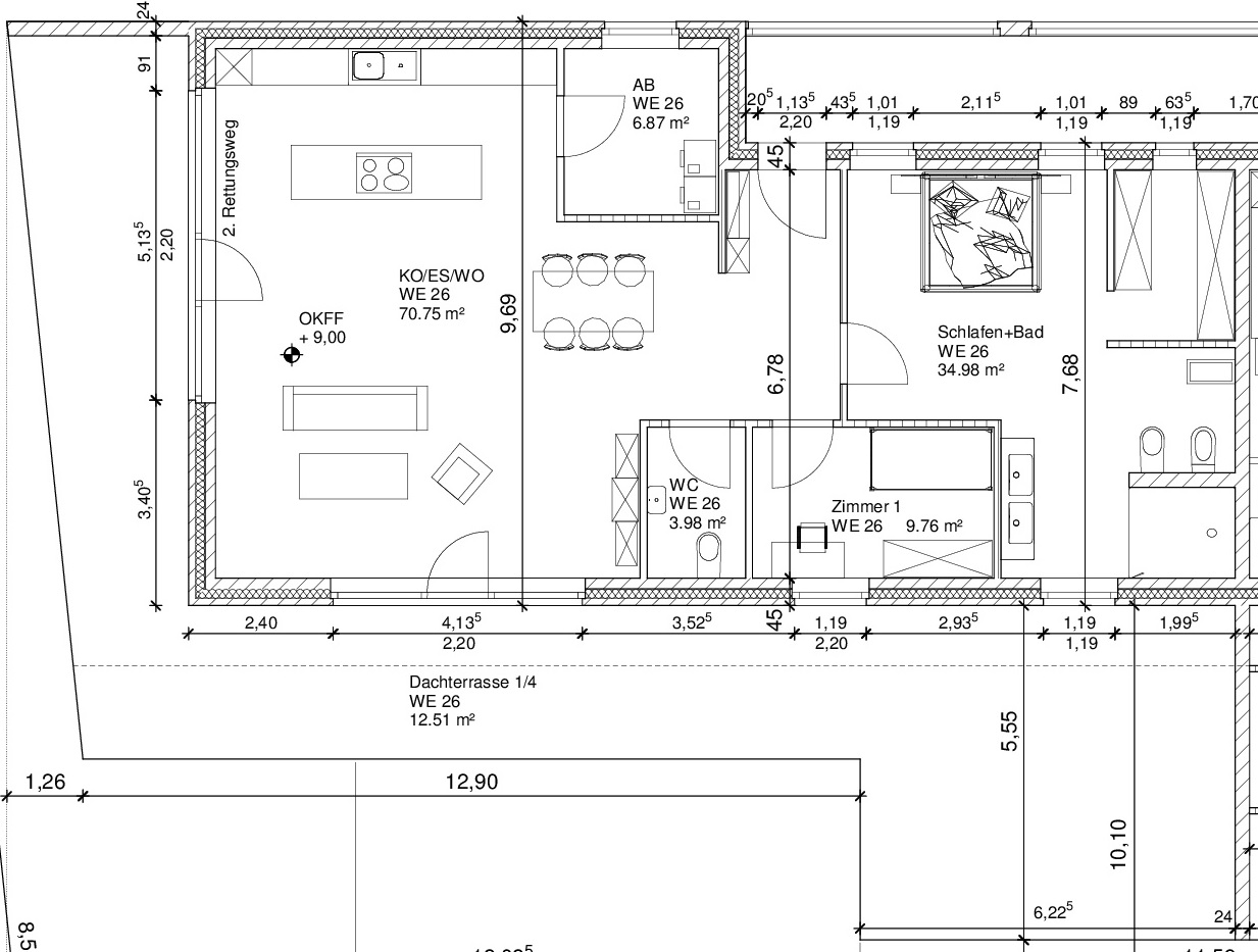
Wohnung Nr. 26 :
Wohnung im 3. Obergeschoss Gang 1 mit einer Dachterrasse,
einem Abstellraum und einem Kellerraum,
die eine Wohnfläche von 138,85 qm hat,
im Aufteilungsplan mit WE 26 bezeichnet und in Farbe: dunkelrot
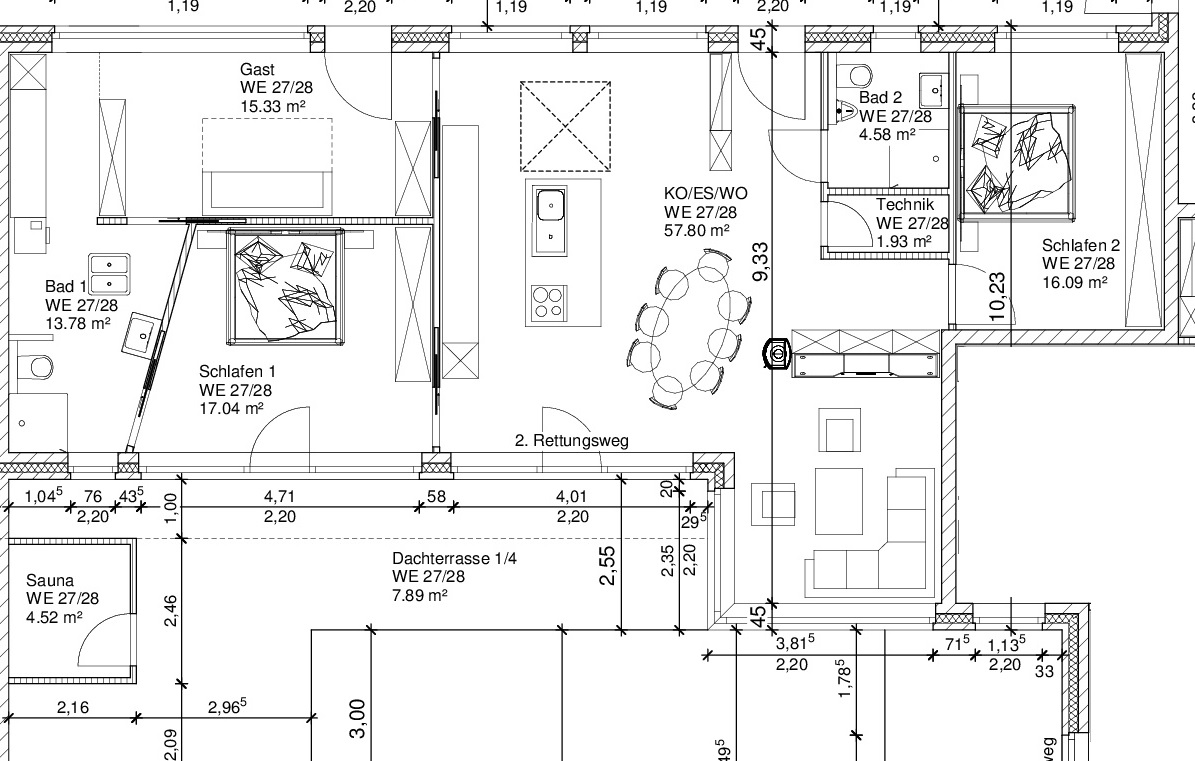
Wohnung Nr. 27/28 :
Wohnung im 3. Obergeschoss Gang 1 mit einer Dachterrasse,
einem Technikraum, einer Sauna und einem Kellerraum,
die eine Wohnfläche von 138,22 qm hat,
im Aufteilungsplan mit WE 27/28 bezeichnet und in Farbe: hellgrau.
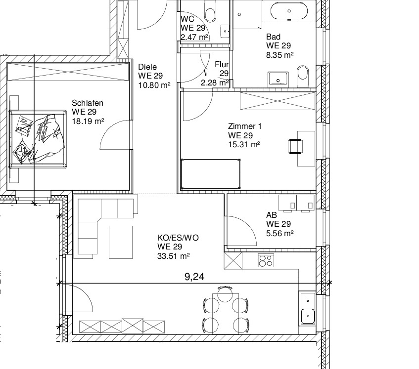
Wohnung Nr. 29 :
Wohnung im 3. Obergeschoss Gang 1 mit einer Dachterrasse,
einem Abstellraum und einem Kellerraum,
die eine Wohnfläche von 99,48 qm hat,
im Aufteilungsplan mit WE 29 bezeichnet und in Farbe: rosa.
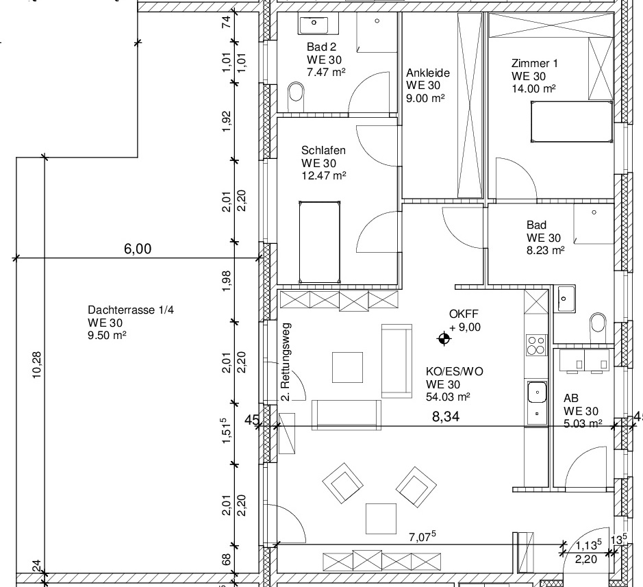
Wohnung Nr. 30 :
Wohnung im 3. Obergeschoss Gang 2 mit einer Dachterrasse,
einem Abstellraum und zwei Kellerräumen,
die eine Wohnfläche von 119,73 qm hat,
im Aufteilungsplan mit WE 30 bezeichnet und in Farbe: hellblau.
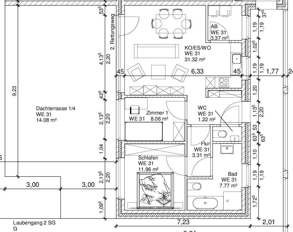
Wohnung Nr. 31 :
Wohnung im 3. Obergeschoss Gang 2
mit einer Dachterrasse, einem Abstellraum und
einem Kellerraum, die eine Wohnfläche von 81,09 qm hat,
im Aufteilungsplan mit WE 31 bezeichnet und in Farbe: dunkelblau.
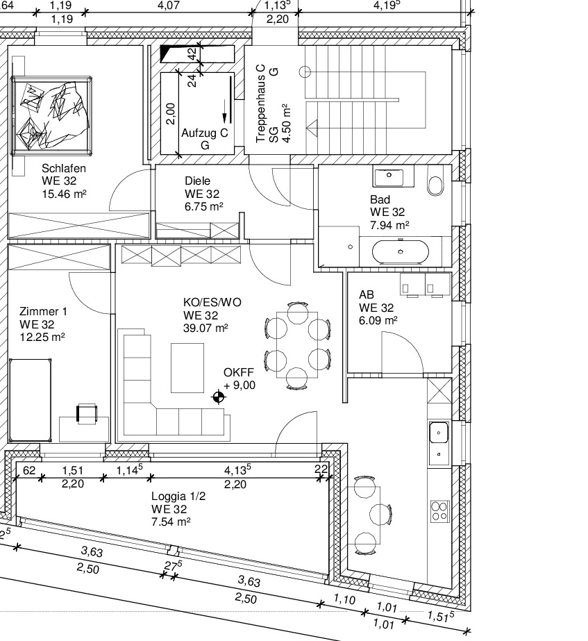
Wohnung Nr. 32 :
Wohnung im 3. Obergeschoss Gang 2
mit einer Loggia,
einem Abstellraum und einem Kellerraum,
die eine Wohnfläche von 95,10 qm hat,
im Aufteilungsplan mit WE 32 bezeichnet und in Farbe: violett.
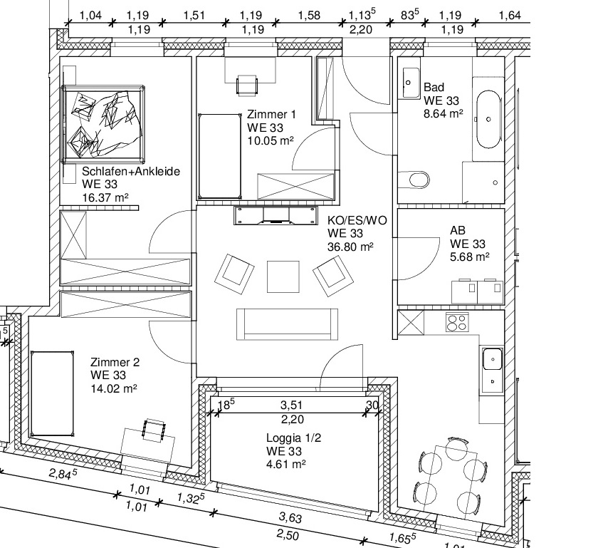
Wohnung Nr. 33 :
Wohnung im 3. Obergeschoss Gang 2 mit einer Loggia,
einem Abstellraum und einem Kellerraum,
die eine Wohnfläche von 96,17 qm hat,
im Aufteilungsplan mit WE 33 bezeichnet und in Farbe: dunkelgrau.
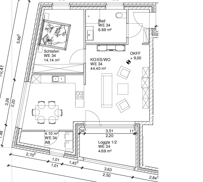
Wohnung Nr. 34 :
Wohnung im 3. Obergeschoss Gang 2 mit einer Loggia,
einem Abstellraum und einem Kellerraum,
die eine Wohnfläche von 74,02 qm hat,
im Aufteilungsplan mit WE 34 bezeichnet und in Farbe: rot.










