Geschäfte
Die Ladenlokale befinden sich im Erdgeschoss
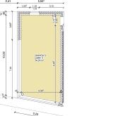
und enthalten jeweils auch einen Kellerraum.
Ab einer Größe von 26qm; bis zu ca. 110qm;
ist alles dabei. Planen Sie noch mit!
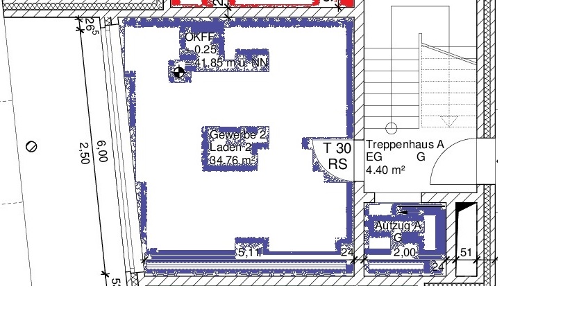
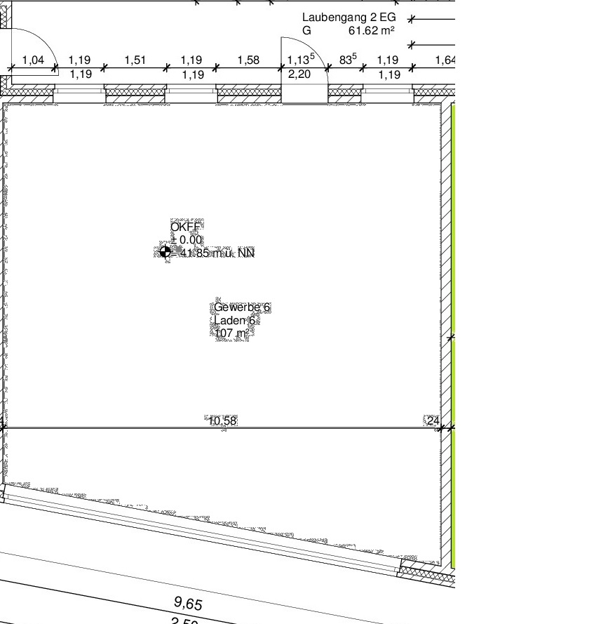
Aufteilungsplan im Erdgeschoss :
Ladenlokal Nr.1 :
Ladenlokal im Erdgeschoss vorne mit einem Kellerraum,
dass eine Nutzfläche von 26,73 qm hat, im Aufteilungsplan
mit Gewerbe 1 / Laden 1 bezeichnet grün umrandet.
Ladenlokal Nr.2 :
Ladenlokal im Erdgeschoss vorne mit einem Kellerraum,
dass eine Nutzfläche von 34,76 qm hat, im Aufteilungsplan
mit Gewerbe 2 / Laden 2 bezeichnet dunkelblau umrandet.
Ladenlokal Nr.3 :
Ladenlokal im Erdgeschoss vorne mit einem Kellerraum,
dass eine Nutzfläche von 64,00 qm hat, im Aufteilungsplan
mit Gewerbe 3 / Laden 3 bezeichnet in Farbe rot dargestellt.
Ladenlokal Nr.4 :
Ladenlokal im Erdgeschoss vorne mit einem Kellerraum,
dass eine Nutzfläche von 138,88 qm hat, im Aufteilungsplan
mit Gewerbe 4 / Laden 4 bezeichnet und hellblau umrandet.
Ladenlokal Nr.5 :
Ladenlokal im Erdgeschoss vorne mit einem Kellerraum,
dass eine Nutzfläche von 54,38 qm hat, im Aufteilungsplan
mit Gewerbe 5 / Laden 5 bezeichnet und in Farbe beige dargestellt.
Ladenlokal Nr.6 :
Ladenlokal im Erdgeschoss vorne mit einem Kellerraum,
dass eine Nutzfläche von 107,00 qm hat, im Aufteilungsplan
mit Gewerbe 6 / Laden 6 bezeichnet. Ohne Farbe
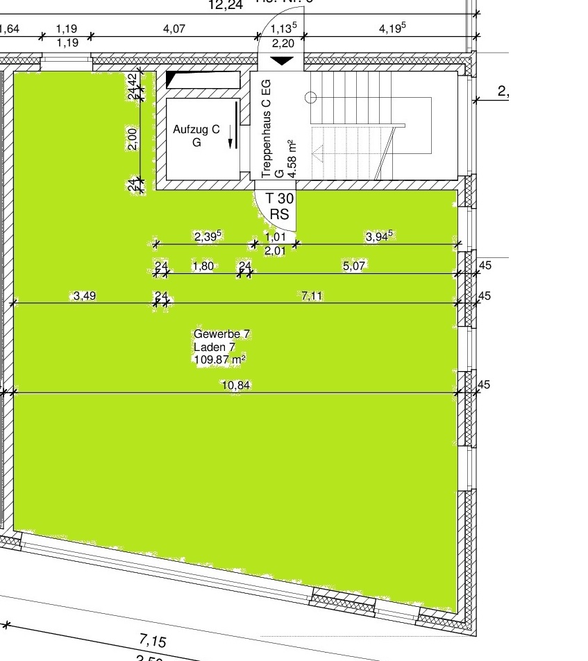
Ladenlokal Nr.7 :
Ladenlokal im Erdgeschoss vorne mit einem Kellerraum,
dass eine Nutzfläche von 109,87 qm hat, im Aufteilungsplan
mit Gewerbe 7 / Laden 7 bezeichnet in Farbe hellgrün dargestellt.








